As the existing building no longer meets current requirements, the municipal council has decided on its demolition and the construction of a multifunctional center that will include not only a new fire station but also a medical center and residential units.
client: Ořechov Village
architect: MON NOM STUDIO
category: mix use – fire station / healthcare / residential
type: new construction
year: 2026
size: 1400 m2


















The design of the Ořechovičská Multifunctional Centre seeks a sensitive integration into the existing urban structure while clearly distinguishing itself from the surrounding development through the orientation of its gable ends toward the street, thereby emphasizing its public character.
In the local context, roof ridges are typically oriented parallel to the main street, creating a unified street frontage. In our case, this rhythm is intentionally disrupted: we change the ridge orientation and present the gables as the main façades, giving the project a distinctive identity.
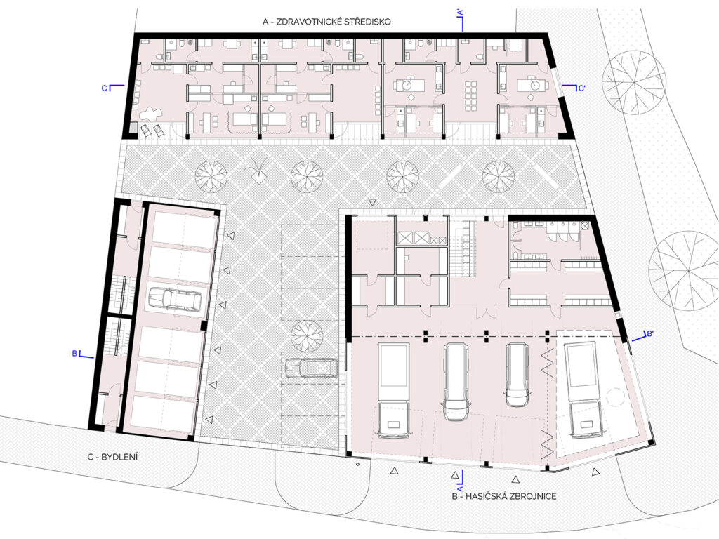
The most prominent position is occupied by the new fire station, which forms the main identifying element of the entire complex. In the rear part of the site, medical offices and residential units are located – functions that require greater distance from the main road. The space between the individual volumes creates a public area intended for visitors as well as social events related to the activities of the fire brigade.
The design works with three generous volumes inspired by a local archetype – barns. Individual functional units are inserted within these volumes. The load-bearing structure is independent of the layout, allowing for a high degree of adaptability and enabling different thermal regimes within spaces unified under one roof, while maintaining simplicity in the technical solution.
The municipality of Ořechov, near Brno, was formed by the merging of three historical settlements: Ořechov, Ořechovičky, and Tikovice. The project is located in the Ořechovičky area, where a fire station currently stands.
As the existing building no longer meets current requirements, the municipal council has decided on its demolition and the construction of a multifunctional center that will include not only a new fire station but also a medical center and residential units.
The new fire station is located in the southwestern corner of the site—on the footprint of the original building. This is the most representative position, with optimal access to Výstavní Street.
The healthcare center – comprising two dental offices, one general practitioner’s office, and one pediatric office – is situated on the eastern side of the site in a longitudinal volume that encloses the entire complex.
Residential units, together with parking spaces, are located to the north. The space created between them and the fire station forms a new village square.
The open space between the individual volumes is designed as a public pedestrian zone with benches, trees, and a fountain.