Located in Moravany u Brna, this former riding school was acquired by the municipality to be converted into a cultural event centre.
client: Moravany village
architect: MON NOM STUDIO + ZOOM DESIGN
category: cultural
type: new construction
year: 2026
size: 1000 m2


















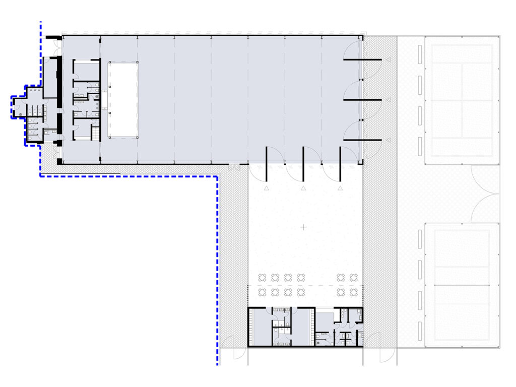
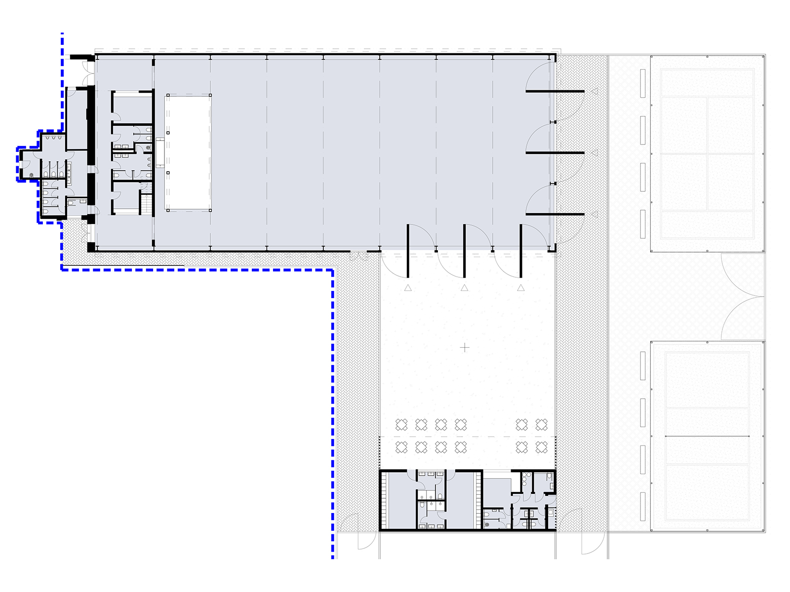
Located in Moravany u Brna, this former riding school was acquired by the municipality to be converted into a cultural event centre. The project focuses on the main hall and its surrounding outdoor areas. Other buildings within the complex (a school, offices, and storage spaces) are not part of this intervention.
The main challenge is to preserve the site’s character despite the need to demolish most of the existing structure, which no longer meets current regulations for its new intended use.
The original hall is spacious and uncluttered, defined by soft perimeter light, a light structural system, elegant proportions, and simple materials that give it a humble, functional, vernacular character. These qualities form the basis of the design proposal.
The existing foundations are retained, and new rational, simple steel frames are introduced, respecting the original number, dimensions, and positions. Perimeter daylight is preserved using polycarbonate panels with integrated windows for natural ventilation. Externally, light-coloured aluminium louvers protect against direct sunlight while maintaining diffused interior light. Special care is taken to integrate new technical installations without disturbing the spatial proportions.
At the northwest corner, large pivoting panels open the hall to the exterior, recalling the heavy stable doors and expanding the building’s flexibility. A new auxiliary volume is placed at the entrance, defining a central plaza. The same paving extends from the interior to the plaza, physically connecting both spaces. This smaller building houses a café and changing rooms to support the adjacent sports area. Two new sports courts are added to the west, creating a transition to the neighbouring football field. These outdoor areas can function independently from the hall.
Inside, a flexible open space with a movable stage allows for a wide range of events. Near the connection to the adjacent building, a new enclosed volume—designed as an independent fire compartment—accommodates essential facilities such as a bar, changing rooms, and restrooms. Additional services are located in currently unused spaces within the neighbouring building.