A project that preserves the cabin’s original character and strong bond with the landscape.
client: private investor
architect: MON NOM STUDIO
category: residential
type: reconstruction
year: 2026
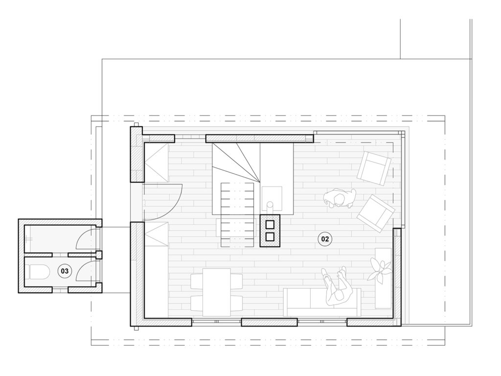
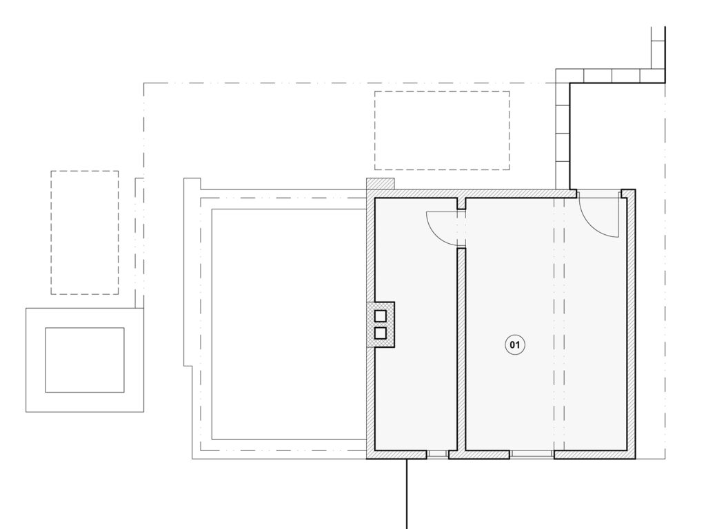
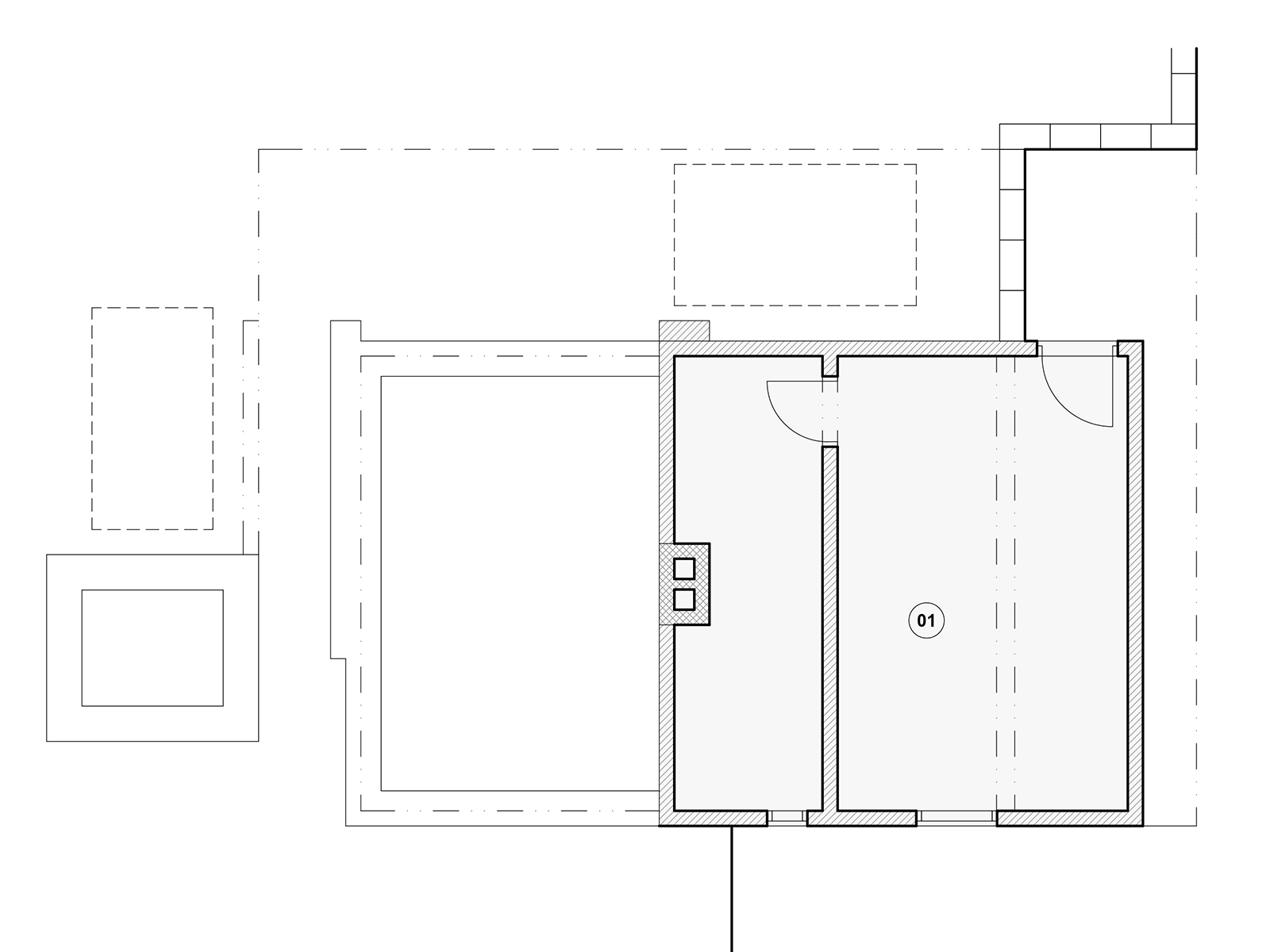
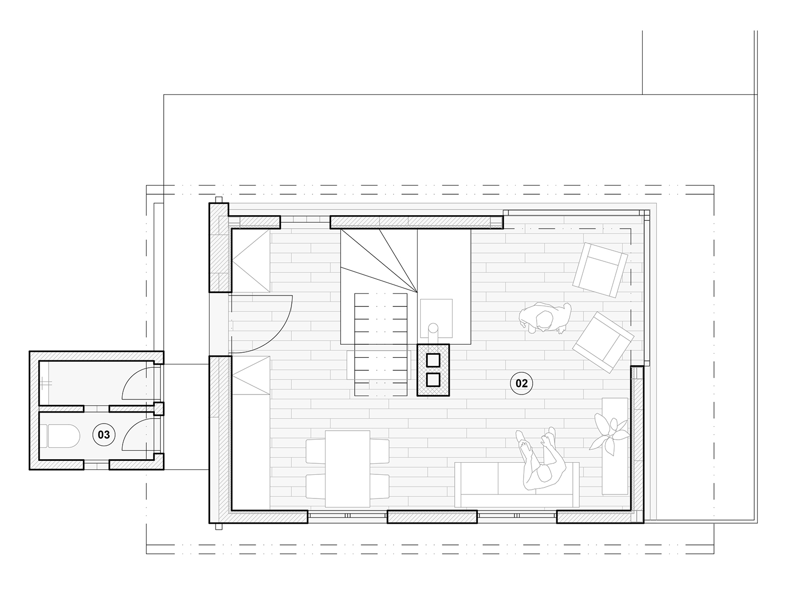
size: 40 m2
budget: 4 M Kč (160.000 €)















Perched on a Moravian hillside, this small cabin combines simplicity, warmth, and breathtaking views. Our project restores the interior and transforms the attic into a cozy living space, while preserving the cabin’s original character and strong bond with the landscape. It features a new roof -extended west for shelter and east with a large window opening to the horizon- as well as a more fluid ground floor that connects indoors and outdoors through sliding windows and lamellas.